Las obras, promovidas por la Junta de Andalucía, cuentan con un presupuesto de 141.672,67 euros y un plazo de ejecución de cuatro meses.
La Junta Local de Gobierno del Ayuntamiento sexitano, a propuesta del concejal delegado de urbanismo, Javier García, ha concedido licencia de obras a la Consejería de Educación, Cultura y Deportes de la Junta de Andalucía para ejecutar el proyecto de eliminación de barreras arquitectónicas en el C.E.I.P Río Verde, situado junto a la calle Mariana Pineda de la localidad de Almuñécar
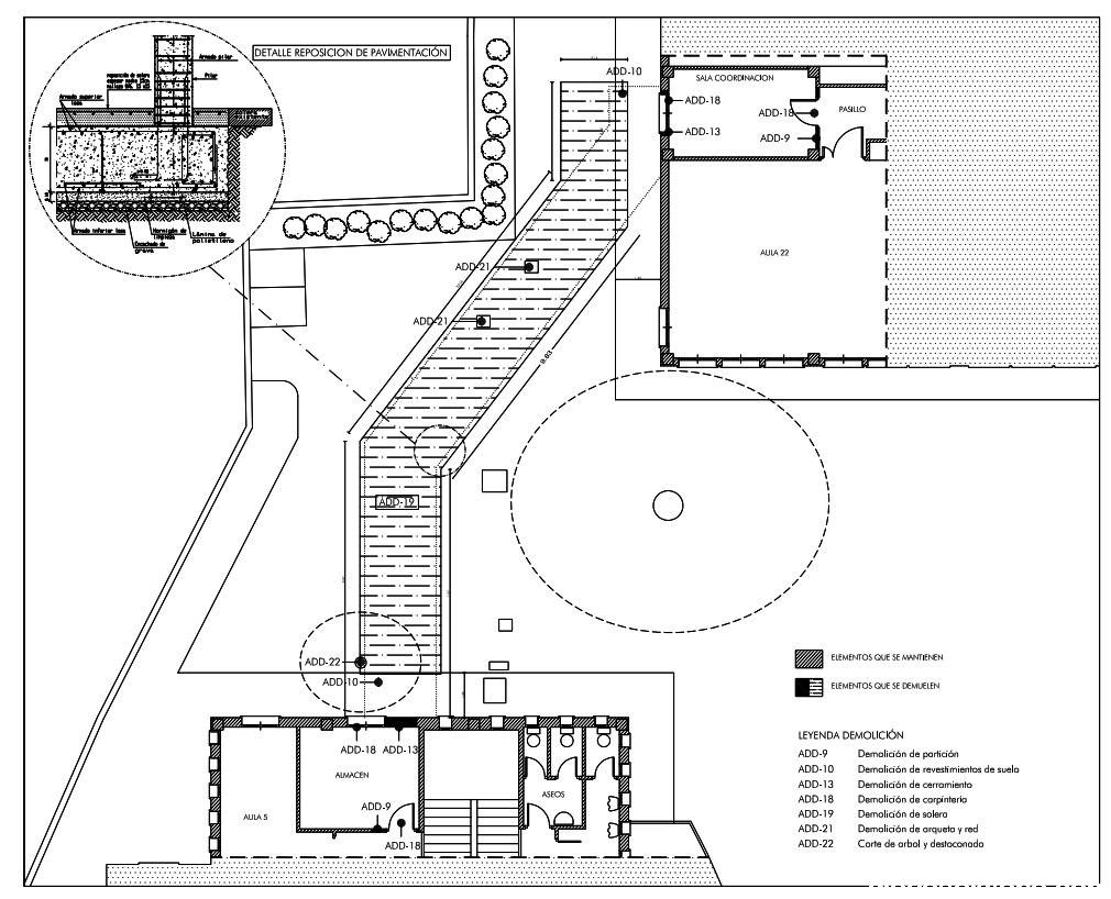
“La eliminación de barreras arquitectónicas del centro, cuenta con varias líneas de actuación, entre las que destaca la dotación de un ascensor adaptado y la construcción de una pasarela accesible que conecte la primera planta de los dos edificios principales, dotando al centro de un itinerario accesible completo entre todas las plantas del centro. A ello se suma la reforma completa de un núcleo de aseos, la sustitución de una rampa de acceso para mejorar la accesibilidad o la renovación de carpinterías”, ha explicado el edil de Urbanismo.
Javier García ha indicado que para el desarrollo y diseño de estas obras, “se ha considerado el empleo de materiales y técnicas constructivas tradicionales acordes con el entorno y las construcciones existentes”, dice el edil sexitano de Urbanismo quien informa que el presupuesto de las obras ascienden a un total de 141.672,67 euros y un plazo de ejecución aproximado de cuatro meses.
“Según el proyecto aprobado la propuesta de eliminación de barreras proyectada resulta de la conjunción entre el programa de necesidades del centro, la normativa urbanística y de forma especial las normas de diseño y constructivas para edificios de uso docente”, señala Javier García.
El edil de Urbanismo de Almuñécar ha destacado la implicación con nuestro municipio de la Consejería de Educación, Cultura y Deporte por la buena sintonía de trabajo entre el Consistorio sexitano y la Junta.

Por su parte el concejal de Cultura y Educación, Alberto García Gilabert, ha querido manifestar su agradecimiento a la Junta, “por la notable inversión que está realizando en los centros educativos de Almuñécar y La Herradura”. En este sentido, García Gilabert ha subrayado, “las importantes mejoras realizadas en materia de eliminación de barreras arquitectónicas en el I.E.S. Antigua Sexi, y C.E.I.P. Las Gaviotas de La Herradura, donde, además, de lleva a cabo la construcción de una instalación deportiva cubierta, lo que supone inversiones que hacen de los centros educativos sexitanos, unos espacios modernos, accesibles y adaptados a todas las necesidades de los más jóvenes”, sentencia.
CEIP “Rio Verde” Almuñécar
El Colegio Público Infantil y Primaria Río Verde se ubica junto a la calle Mariana Pineda, en la zona urbana nueva conocida popularmente como el P-4. Cuenta con tres edificios, dos de dos plantas y un comedor de planta baja. Precisamente las obras que se proponen tratan de unir los dos edificios para dar accesibilidad. Este centro educativo tiene más de 30 años y se levantó sobre una parcela de algo más de 8.100 m2. En la actualidad concentra unos 400 alumnos que son atendidos por una treintena de profesores.
Dejar una contestacion